螺旋喂料機可實現物料點對點的轉移,按安裝形式可分為傾斜式螺旋給料機、垂直螺旋喂料機、水平螺旋輸送機,按使用形式,可分為單獨供料和集中供料,源頭廠家,承接各種要求的個性化定制,價格優惠,歡迎垂詢!

一、工作原理:
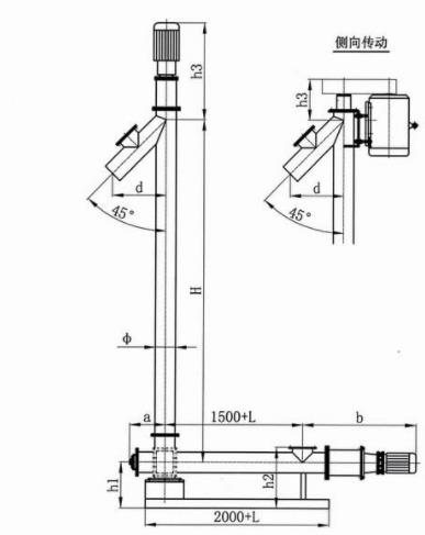
螺旋喂料給料機通過減速機驅動螺旋軸的旋轉,螺旋軸上的螺旋葉片驅動物料,將物料輸送到一定的水平距離和水平高度,廣泛應用于廠家工業生產中粉末和顆粒物料的輸送。
第二,螺桿上料機主要技術參數:
1.進料速度:1-3T/H(可定制)
2.螺桿上料機上料機箱體容積:110升(可定制)
3.供電:三相380V50Hz(220V可定制)
4、螺旋上料機配套設備功率:驅動馬達1.1KW振動馬達150W。
5.整機重量:110公斤。
6.進料高度:1600毫米(常規配套包裝機使用,可定制)
7.料斗外形尺寸:800×800mm(可定制圓斗送料器)

三、性能特征:
1.開關設計為正反轉控制,便于清除管道中的殘留物料;
2、螺旋喂料給料機料管下端設計有放料門,清料時,打開放料門,馬達反轉,即可完成清料;
3.用卡箍固定螺桿端座,便于拆卸時將整個螺桿抽出,便于清洗;
4.可安裝傳感器和智能控制電路,進行料位控制,實現自動給料或過載報警;
5、螺旋喂料給料機在儲料倉上安裝振動馬達,能有效解決物料搭架現象;
6.運輸效率高,工作安全可靠,結構簡單,功能齊全;
7.密封性能好,噪音小,外形美觀;
四、產品特點:
1、螺旋喂料給料機應用廣泛,在不同的場合均有使用,可合理選擇適用自己的設備;
2、因為每家應用場景不同,除了配套包裝機等設備又固定尺寸外,其余規格均需定制;
3、我們源頭廠家生產,承接不同尺寸的定制
4、整機設計合理,拆卸方便,價格優惠。

產品綜述:
1、螺旋喂料機常見形式
水平式獨立使用的螺旋輸送機
傾斜式獨立使用的螺旋給料機
垂直式獨立使用的螺旋喂料機
傾斜式+水平式組合使用
垂直式+水平式組合使用
水平式多段組合使用
采用哪種方式進行物料的輸送和轉移,要根據具體使用環境的不同和相關受料設備的輸送距離等具體參數而定
2、常用材質:
201/304/316/碳鋼等材質
選用哪種材質,依據輸送物料自身特性和生產要求及使用周邊的濕度、酸堿度等來決定。
3、螺旋喂料給料機可以實現的輸送距離
經過第一條提到的各種方式進行合理的組合,理論上可以實現任何距離外的物料輸送
4、輸送介質的常見類型
可以輸送干散狀、無粘性的粉末狀物料,根據物料的堆積密度、流動性等參數內部螺距設計有所不同。
可以輸送小顆粒物料,但是,在輸送過程中因為螺旋管壁和螺旋葉片的摩擦、擠壓,會對物料造成一定的破損,如不介意均可使用,如不希望有太多破損,可選擇我司的Z型上料提升機或者斜斗式顆粒上料機。
5、產品定制:
因為每一個客戶安裝的設備尺寸均不盡相同,該螺旋喂料給料機類型設備均為量身個性化定制,定制前,我司技術工程師會進行各種參數的咨詢,煩請配合提供,這是為了能夠給您提供一臺好用的喂料機。
鄭州杰凱廠家承接螺旋喂料給料機的定制,可以獨立使用,也可與包裝機、注塑機、混料機等設備配套使用,可根據客戶使用現場量身定制,前期免費出圖,歡迎咨詢。




客服1